Villa in vendita a Alassio
Alassio
Zona: - Via Luigi Borri
€ 495.000
#235 mq
#3
#3
Vedi più foto
Cod. 040
€ 495.000
Classe energetica: Non specificato

Villa in vendita a Alassio

- Via Luigi Borri
# 235 mq
# 3 Bagni
# 3 Camere
Descrizione

CERCHI UNA SPLENDIDA SOLUZIONE INDIPENDENTE COMPOSTA DA 2 APPARTAMENTI VISTA MARE?

HIVE HOME propone in Vendita ESCLUSIVA, nella collina di Alassio, spaziosa SOLUZIONE INDIPENDENTE composta da due appartamenti entrambi vista mare con esposizione Sud Est circondati da una splendida corte con giardino e terreno (bosco misto di 480mq) annesso.

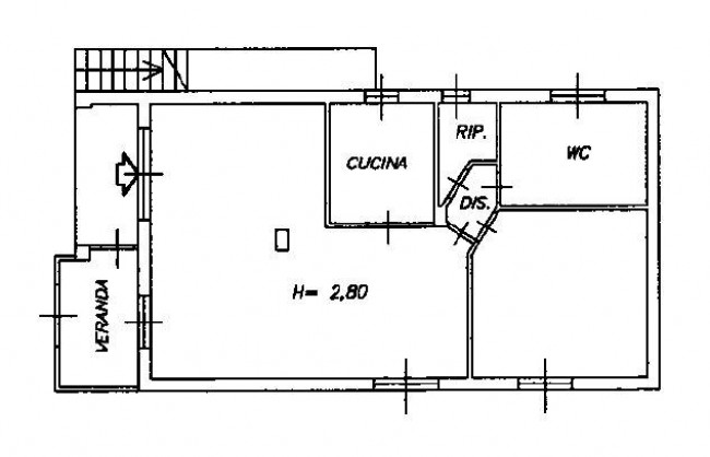
Il piano terra, ristrutturato nel 2003, si compone da ingresso su spazioso soggiorno vista mare, cucina abitabile, disimpegno, ripostiglio, camera da letto matrimoniale e ampio bagno finestrato con doccia. E' inoltre presente una veranda accessibile dal soggiorno.

Il piano primo invece si compone da ingresso su ampio soggiorno vista mare aperta, cucina abitabile, disimpegno, doppi servizi entrambi finestrati e due spaziose camere da letto matrimoniali.
Completano il piano primo un fantastico terrazzo angolare che consente di godere a pieno della splendida esposizione al sole e della vista mare sul golfo di Alassio e che permette di accedere ad una soffitta al piano superiore.

Gli immobili sono dotati di riscaldamento autonomo.

Perfetto investimento per chi cerca una soluzione plurifamiliare vista mare, di ottima metratura, con ampi sfoghi esterni e facilmente accessibile potendo arrivare con l'auto direttamente davanti agli ingressi.

CHE ASPETTI?
OCCASIONE UNICA
CONTATTACI!

  • Villa in vendita a Alassio
  • Villa in vendita a Alassio
  • Villa in vendita a Alassio
  • Villa in vendita a Alassio
  • Villa in vendita a Alassio
  • Villa in vendita a Alassio
  • Villa in vendita a Alassio
  • Villa in vendita a Alassio
  • Villa in vendita a Alassio
  • Villa in vendita a Alassio
  • Villa in vendita a Alassio
  • Villa in vendita a Alassio
  • Villa in vendita a Alassio
  • Villa in vendita a Alassio
  • Villa in vendita a Alassio
  • Villa in vendita a Alassio
  • Villa in vendita a Alassio
  • Villa in vendita a Alassio
  • Villa in vendita a Alassio
  • Villa in vendita a Alassio
  • Villa in vendita a Alassio
  • Villa in vendita a Alassio
  • Villa in vendita a Alassio
  • Villa in vendita a Alassio
  • Villa in vendita a Alassio
  • Villa in vendita a Alassio
  • Villa in vendita a Alassio
  • Villa in vendita a Alassio
  • Villa in vendita a Alassio
  • Villa in vendita a Alassio
  • Villa in vendita a Alassio
mostra di piùmostra di meno
Caratteristiche
Scopri le caratteristiche di questo immobile
Nelle vicinanze
Servizi e infrastrutture della zona
Ubicazione immobile
Alcuni immobili che potrebbero interessarti
Villa in vendita a Andora
  Visto ma aggiornato
Andora
€ 625.000
Villa in vendita a Andora
Cod. 029
CERCHI UNA SPLENDIDA VILLA INDIPENDENTE CON UNA INCREDIBILE VISTA SUL GOLFO DI ANDORA?HIVE HOME propone in VENDITA ESCLUSIVA ad Andora,...
Dettagli
Appartamento in vendita a Alassio
  Visto
Novità
Alassio
€ 159.000
Appartamento in vendita a Alassio
Cod. 061
HIVE HOME propone in VENDITA ESCLUSIVA trilocale con sfogo esterno in Via Solva a circa 500 metri dalle spiagge.L'immobile, che gode...
Dettagli
Appartamento in vendita a Alassio
Novità
Alassio
€ 350.000
Appartamento in vendita a Alassio
Cod. 042
CERCHI UN TRILOCALE DI NUOVA COSTRUZIONE VISTA MARE AD ALASSIO?HIVE HOME propone in VENDITA, all'interno di una villetta appena ristrutturata,...
Dettagli
Appartamento in vendita a Alassio
Alassio
€ 499.000
Appartamento in vendita a Alassio
Cod. 015
Hive Home propone in VENDITA ad Alassio splendido quadrilocale con doppi servizi, a pochi passi dalle spiagge e VISTA MARE!L'immobile...
Dettagli
Ultimo aggiornamento 13/05/2026
×
Codice
Contratto
Scegli dove cercare
Tipologia - multiscelta
Prezzo


Totale mq


Locali minimi
Bagni minimi
Camere minime
Altre opzioni - multiscelta