Appartamento in vendita a Andora
Andora
Zona: - Via Rattalino
€ 399.000
#82 mq
#2
#2
Cod. 08
€ 399.000
Classe energetica: Non specificato

Appartamento in vendita a Andora

- Via Rattalino
# 82 mq
# 2 Bagni
# 2 Camere
Descrizione

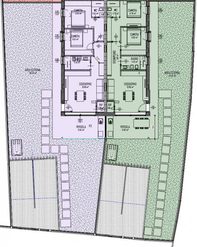
Hive Home propone in Vendita, ESCLUSIVE SOLUZIONI: trilocali con doppi servizi di NUOVA costruzione ESENTI da IVA e da spese condominiali.

Le soluzioni, rifinite con uno stile architettonico moderno ed elegante, si compongono da: ingresso su soggiorno con angolo cottura, ripostiglio, comodo disimpegno che consente di accedere al bagno principale finestrato con doccia e alla camera da letto singola.
Completa la proprietà la camera da letto matrimoniale con bagno di servizio finestrato.

La proprietà, dotata di riscaldamento autonomo, presenta inoltre una comoda pergola all'esterno che consente di vivere a pieno la bellissima esposizione al sole sud/ovest degli alloggi, un giardino privato di 130 o 160 mq a seconda dell'alloggio scelto e 2 posti auto interni.

Siamo a circa 450 metri dalle spiagge di Andora, in zona comoda a tutti i servizi come alimentari, bar, fermate del bus e la prima farmacia dista circa 300 metri.

Perfetta soluzione sia come prima che come seconda casa, con basse spese di gestione non essendo in condominio e con l'agevolazione dell'acquisto senza IVA.

L'acquisto sarà regolamentato seguendo i SAL della costruzione, fornendo al possibile acquirente la possibilità di modificare la soluzione in corso d'opera.

Che aspetti? Contattaci per maggiori informazioni

Caratteristiche
Scopri le caratteristiche di questo immobile
Nelle vicinanze
Servizi e infrastrutture della zona
Ubicazione immobile
Alcuni immobili che potrebbero interessarti
Appartamento in vendita a Andora
Andora
€ 434.000
Appartamento in vendita a Andora
Cod. 039
CERCHI UNO SPLENDIDO TRILOCALE CON DOPPI SERVIZI DI NUOVA COSTRUZIONE VISTA MARE?HIVE HOME propone in VENDITA, in COLLABORAZIONE ESCLUSIVA...
Dettagli
Appartamento in vendita a Andora
  Visto
Novità
Andora
€ 280.000
Appartamento in vendita a Andora
Cod. 063
CERCHI UN BILOCALE AL PIANO PRIMO E ULTIMO DI NUOVA COSTRUZIONE CON TERRAZZO VIVIBILE ED ESENTE IVA?HIVE HOME propone in VENDITA ESCLUSIVA...
Dettagli
Appartamento in vendita a Andora
Andora
€ 349.000
Appartamento in vendita a Andora
Cod. 010
Hive Home propone in VENDITA, ESCLUSIVA SOLUZIONE: trilocale con doppi servizi di NUOVA costruzione ESENTE da IVA e da spese condominiali.La...
Dettagli
Appartamento in vendita a Andora
Andora
€ 529.000
Appartamento in vendita a Andora
Cod. 011
Hive Home propone in VENDITA, ESCLUSIVO ATTICO VISTA MARE: quadrilocale con doppi servizi di NUOVA costruzione ESENTE da IVA e da spese...
Dettagli
Ultimo aggiornamento 07/11/2025
×
Codice
Contratto
Scegli dove cercare
Tipologia - multiscelta
Prezzo


Totale mq


Locali minimi
Bagni minimi
Camere minime
Altre opzioni - multiscelta